Оригинальный дом в Польше всего в $43000
Domo Dom построен по проекту польской архитектурной студии Arciteckt Lemanski. Необычная форма строения обусловлена желанием владельца экономить на электроэнергии, поэтому все окна расположены так, чтобы солнечный свет максимально долго мог попадать в дом. Кроме того, размер внешних источников света четко рассчитан, что позволяет хозяевам не включать свет достаточно долго, пользуясь природными ресурсами.
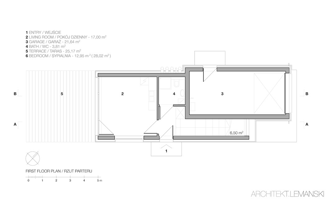
Дом состоит из двух основных объемов: кривая с металлической темной обшивкой, содержащая жилые помещения и белая коробка, которая служит в качестве гаража. Domo не имеет привычного всем парадного входа, обычная дверь скромно расположена в торце здания с подвесным навесом из закаленного стекла. Брутальность постройки поддерживают камни и кирпич, которые художественным образом выложены вокруг. На 40 кв. метрах жилого пространства расположена гостиная с кухней, ванная комната и спальня, под гараж отведено почти 22 кв. метра. Терраса находится на подиуме и имеет 25,17 кв. метров. Интерьер выполнен в светлых тонах с применением большого количества натуральных материалов. В конце прошлого года проект Domo был представлен на конкурсе V4 Family Houses и занял первое место среди жилых домов на одну семью.
Domo Dom находится в Кракове (Польша) и обошелся владельцу всего в $43000.
















©

Дом состоит из двух основных объемов: кривая с металлической темной обшивкой, содержащая жилые помещения и белая коробка, которая служит в качестве гаража. Domo не имеет привычного всем парадного входа, обычная дверь скромно расположена в торце здания с подвесным навесом из закаленного стекла. Брутальность постройки поддерживают камни и кирпич, которые художественным образом выложены вокруг. На 40 кв. метрах жилого пространства расположена гостиная с кухней, ванная комната и спальня, под гараж отведено почти 22 кв. метра. Терраса находится на подиуме и имеет 25,17 кв. метров. Интерьер выполнен в светлых тонах с применением большого количества натуральных материалов. В конце прошлого года проект Domo был представлен на конкурсе V4 Family Houses и занял первое место среди жилых домов на одну семью.

Domo Dom находится в Кракове (Польша) и обошелся владельцу всего в $43000.

















©
Комментариев 2
Посетители, находящиеся в группе Гости, не могут оставлять комментарии к данной публикации.