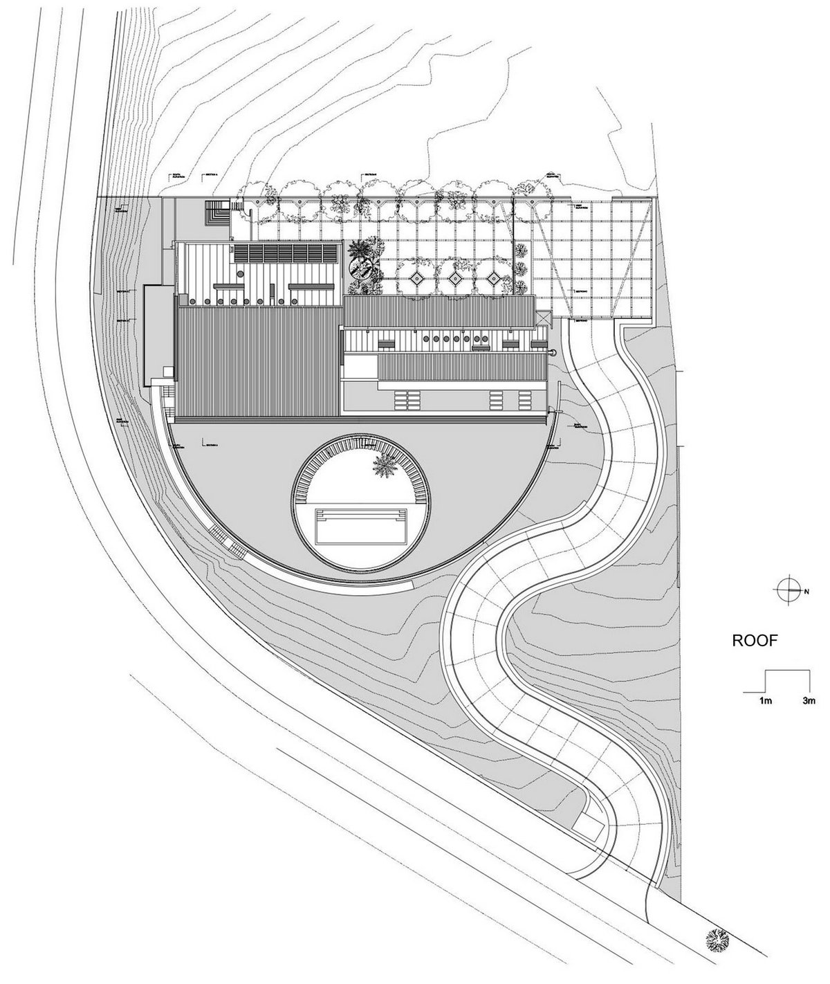
Чилийская архитектурная компания Izquierdo Lehmann представила яркий проект особняка House in Vitacura в 2012 году на окраине города Сантьяго, Чили. Дом на склоне горы в буквальном смысле врезан в породу и открывает хозяевам вид на горы Анды и город расположенный в долине. Просторный дом предназначен для большой семьи, и в нем есть огромное количество функциональных помещений. В верхней части дома располагаются гостиная комната, кухня и столовая, отдельное крыло со спальными комнатами, патио и гараж. Изюминка особняка это атриум на минус первом этаже, в котором расположились развлекательные зоны и зоны отдыха, а так же бассейн с шезлонгами под открытым небом. Оттуда открывается потрясающая панорама на окружающий ландшафт, который непередаваемо красив в темное время суток.
©
Посетители, находящиеся в группе Гости, не могут оставлять комментарии к данной публикации.