Архитекторы Studio Bazi проработали интерьер квартиры площадью всего 35 квадратных метров в Москве. Они сумели решить главную задачу и создать открытое пространство, наполненное светом, уютом и стилем.
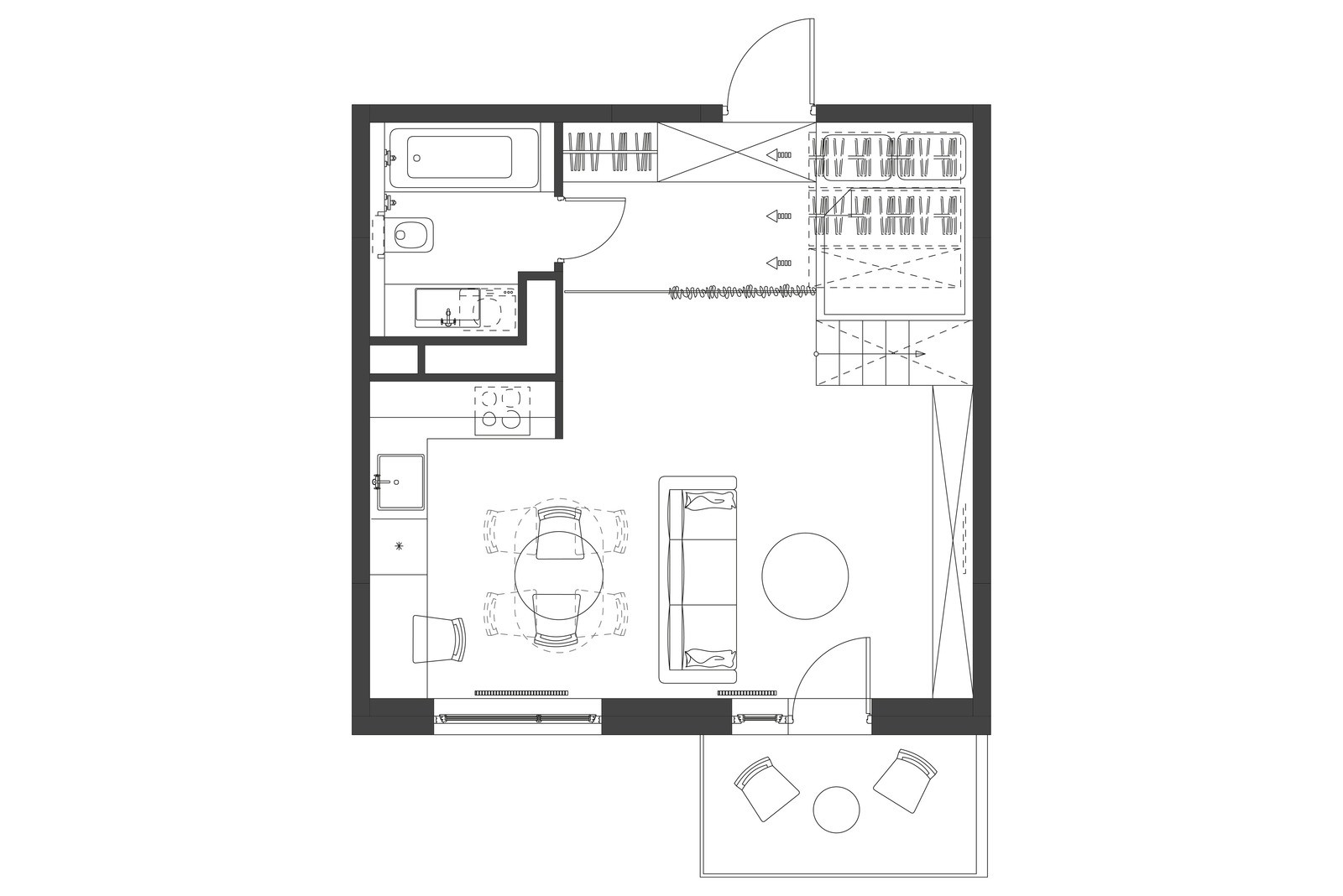
В квартире предусмотрено достаточно мест для хранения вещей и организована спальная зона в деревянном боксе, тем самым обособленная от гостиной и кухни. Ступени, ведущие к компактной спальне, выполнены устойчивыми, красивыми и функциональными, позволяя спрятать различные мелочи, а непосредственно пространство под ней скрывает крупную бытовую технику. Эта часть мебели покрыта сосновыми панелями, что делает интерьер более тёплым. По эскизам архитекторов выполнены также шкаф и полки. Возле окна предусмотрено рабочее место. Плотные шторы отделяют прихожую от жилой части резиденции.
Комментариев 4
Посетители, находящиеся в группе Гости, не могут оставлять комментарии к данной публикации.